Apartment Im Huggn
Preview only — see all hotel photos
See all 42 photos
Visa hotell på karta
Apartment Im Huggn
Apartment Im Huggn Fulpmes erbjuder närhet till sevärdheterna som Pfarrkirche Fulpmes, som ligger ungefär 5 minuter bort till fots. För ett skidäventyr i Fulpmes erbjuds också skidförvaringsrum och skiduthyrning.
Populära attraktioner i området inkluderar Serles Wasser, ungefär 4 km bort. Om du vill besöka omgivningarna kan du ta dig till Kampler See, cirka 10 minuter med bil från lägenheten. Apartment Im Huggn ligger en kort bit från Rope Course Outdoorprofi Tirol.
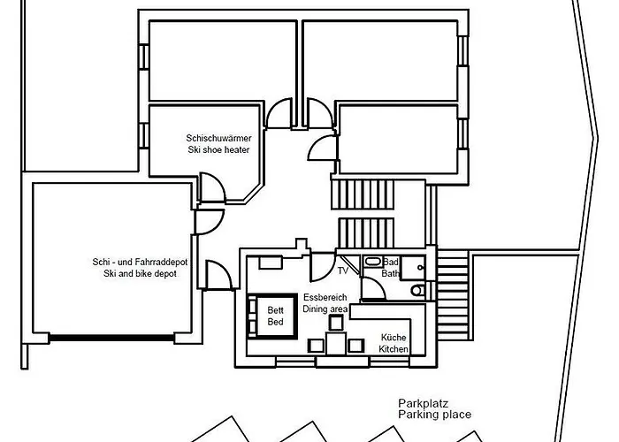
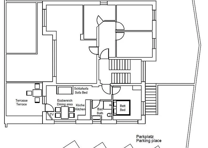
Boendet har terrass, sitthörna och kök och vetter mot bergen. Apartment Im Huggn erbjuder en duschkabin och en separat toalett för ökad komfort. Det finns också hårtorkar, badlakan och handdukar.
Gästerna kan laga sina egna måltider i ett kök utrustat med ugn och diskmaskin. Busshållplatsen Stubaierhof är belägen 600 meter från den här lägenheten. Möjligheter till snöskidåkning förstärker gästernas upplevelse.
Bekvämligheter
Viktiga bekvämligheter
- Wi-Fi
- Barnvänligt
- Husdjur ej tillåtna
Faciliteter
- Helt rökfritt
- Wi-Fi
- Parkering
- Inga husdjur
- Skidförråd
- Rökdetektorer
- Brandsläckare
- Nyckelåtkomst
- Elektrisk vattenkokare
- Köksgeråd
- Matplats utomhus
- Skidåkning
- Uppvärmning
- Sittgrupp
- Te- och kaffefaciliteter
- Matbord
- LCD-TV
- Barnsängar
Policy
Karta
Lokala sevärdheter
Flygplatser
- Innsbruck Flygplats (20 km)
Recensioner
100% Verifierade recensioner