Apartment im Huggn
Preview only — see all hotel photos
See all 30 photos
Hotel auf Karte anzeigen
Apartment im Huggn
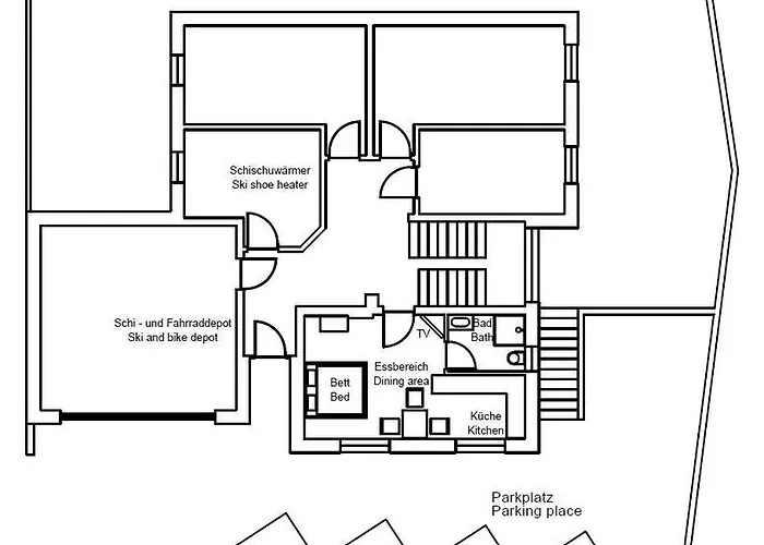
Das Apartment im Huggn Fulpmes liegt nur 5 Minuten zu Fuß von der Pfarrkirche Fulpmes entfernt und bietet einen Blick auf die Berge. Wenn Sie zum Skifahren nach Fulpmes reisen, stellt dieses Apartment Skiräume und einen Skiverleih zur Verfügung.
Ochsenhutte befindet sich in Fulpmes, in ungefähr 4 km Entfernung vom Apartment. Kreuzjochbahn ist in etwa 800 Meter Entfernung vom Apartment im Huggn, während die Bushaltestelle Stubaierhof nicht weit entfernt von der Unterkunft ist. Diese Unterkünfte befindet sich ungefähr 2 km vom Kampler See entfernt.
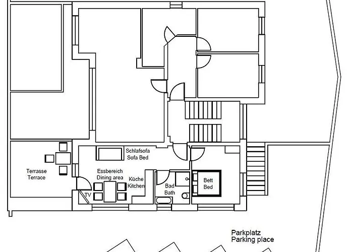
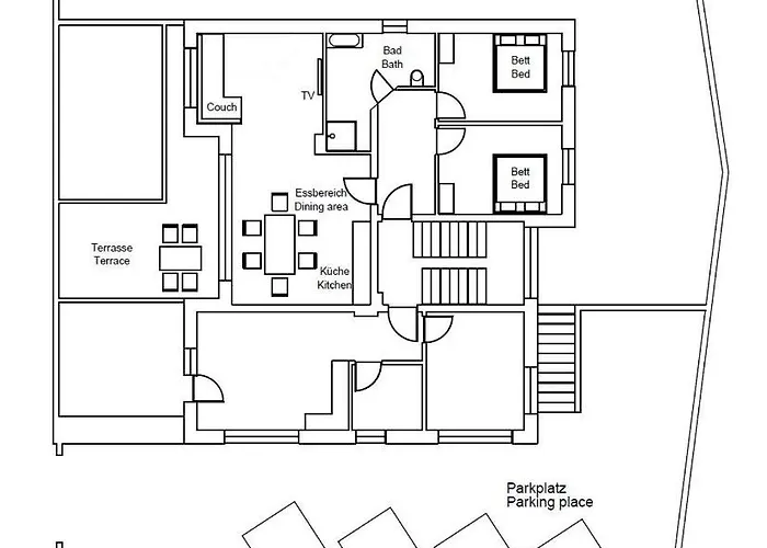
Diese Apartments bietet zudem einen Haartrockner und Handtücher im Badezimmer für zusätzlichen Komfort. Außerdem findet man hier eine getrennte Toilette und eine Dusche.
Das Apartment im Huggn verfügt über eine Küche sowie ist mit einem Herd und einem Geschirrspüler ausgestattet. Der Flughafen Innsbruck ist innerhalb von 20 km zu erreichen. Hier erwartet Sie ein unvergesslicher Aktivurlaub und Abenteuer mit Skifahren.
Annehmlichkeiten
Hauptausstattung
- WLAN
- Kinderfreundlich
- Haustiere nicht erlaubt
Ausstattung
- Alle Bereiche sind Nichtraucherzonen
- WLAN
- Parkmöglichkeiten
- Keine Haustiere erlaubt
- Skiraum
- Rauchmelder
- Feuerlöscher
- Zugang mit Schlüssel
- Wasserkocher
- Küchenutensilien
- Essplatz im Freien
- Skifahren
- Heizung
- Sitzecke
- Ausstattung zur Kaffee- und Teezubereitung
- Esstisch
- Flachbildschirm-TV
- Gitterbetten
Richtlinien
Karte
Lokale Attraktionen
Flughäfen
- Flughafen Innsbruck (20 km)
Bewertungen
100% geprüfte Bewertungen