Apartment Im Huggn
Preview only — see all hotel photos
See all 42 photos
Το ξενοδοχείο στο χάρτη
Apartment Im Huggn
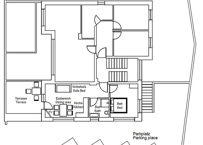
Επιπλέον, έχει ξεχωριστή τουαλέτα και ντους. Επίσης, το κατάλυμα προσφέρει χώρο αποθήκευσης σκι και ενοικίαση σκι.
Panoramasee επίσης βρίσκεται σε απόσταση περίπου 25 λεπτών με τα πόδια. Rope Course Outdoorprofi Tirol βρίσκεται σε απόσταση μόνο 1 χλμ.
Αυτό το διαμέρισμα έχει θέα στο βουνό και διαθέτει βεράντα, χώρο καθιστικού και κουζίνα. Επιπλέον, υπάρχουν στεγνωτήρας μαλλιών και πετσέτες.
Το Apartment Im Huggn παρέχει φούρνο και πλυντήριο πιάτων, τα οποία μπορείτε να βρείτε στην κουζίνα. Το Apartment Im Huggn απέχει μόνο 10 λεπτά με τα πόδια από την πλησιέστερη στάση λεωφορείων Stubaierhof. Στις εγκαταστάσεις μπορείτε να ασχοληθείτε με διάφορες δραστηριότητες, όπως σκι.
Ανέσεις
Βασικές Παροχές
- Wi-Fi
- Κατάλληλο για παιδιά
- Δεν επιτρέπονται κατοικίδια
Εγκαταστάσεις
- Απαγορεύεται το κάπνισμα σε όλους τους χώρους
- Wi-Fi
- Χώρος στάθμευσης
- Δεν επιτρέπονται κατοικίδια
- Χώρος αποθήκευσης σκι
- Ανιχνευτές καπνού
- Πυροσβεστήρες
- Κλειδί
- Βραστήρας
- Κουζινικά είδη
- Τραπεζαρία εξωτερικού χώρου
- Σκι
- Θέρμανση
- Καθιστικό
- Εγκαταστάσεις για τσάι και καφέ
- Τραπέζι φαγητού
- LCD TV
- Βρεφικές κούνιες
Όροι ξενοδοχείου
Χάρτης
Τοπικά Αξιοθεατα
Αεροδρόμια
- Αεροδρόμιο του ΊΝσμπρουκ (20 χλμ.)
Αξιολογήσεις
100% Αληθινά Σχόλια